Ref.
Cerco
Tipus
A
Zona
Habitacions
Banys
Característiques
Preu

GRAN PIS A FIGUERES (ref.3891)

Pis en venda a Figueres, Girona

295.000 €
ref. 3891
523 m2 construïts
163 m2 útils
 
 Dormitoris 5
 Banys 3
 Traster
 Alçada/Planta 1

Estat Bon Estat
Ascensor
Qualificació Energètica (F) MOSTRA
Conserge
Pista Multiusos

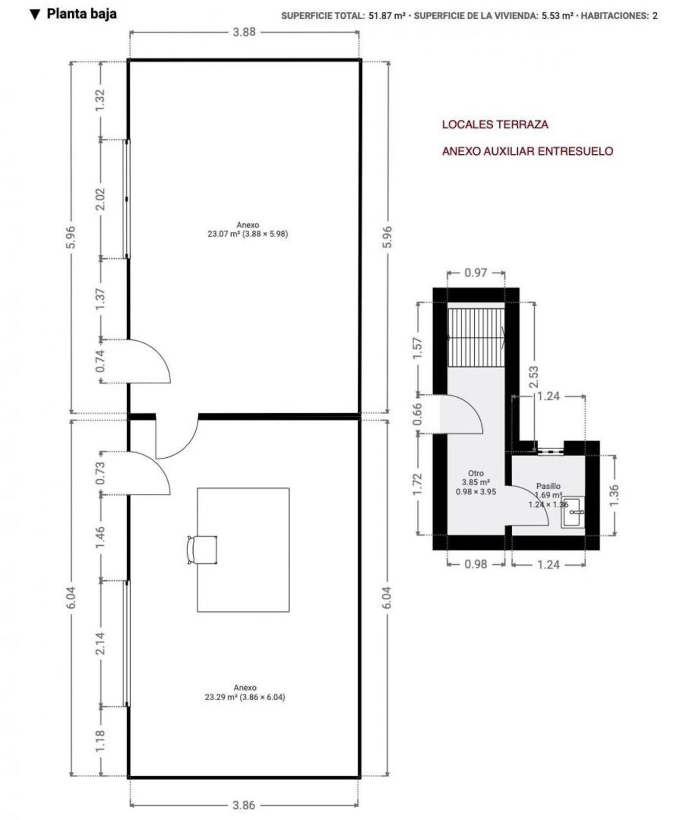
EXCLUSIVA APIALIA: Pis a la comarca de Figueres Costa Brava, amb 524,4 m2 construïts i 163,06 m2 útils, dels quals el pis comprèn 192,4 m2, la terrassa de 316 m2 d'ús privat a la qual només s'accedeix des d'aquest pis i que està disponible des de trastos locals de 24 m2 cadascun, i una habitació adjacent de 16 m2 amb bany independent, també utilitzada com a celler, originalment l'allotjament on residia el servei de la casa. L'habitació està situada en un edifici molt bo amb servei de porteria. Molt lluminosa i orientada que es distribueix en les següents zones: gran saló-menjador a la terrassa davantera amb vistes a la plaça i una xemeneia interior que separa el menjador de la sala d'estar, cuina independent, quatre habitacions dobles, una amb accés a un pati interior i l'altra suite amb bany amb dutxa reformada, una habitació individual, dos banys amb banyera -un dels dos reformat- i el rebedor. Des d'un dels habitatges tenim accés a la terrassa tancada del costat on s'ha completat la nostra funció de bugaderia i tenim accés a la gran terrassa de 316m2. El terra està climatitzat i calefactat per conductors, només parquet. També disponible al mateix edifici de plaça per a un cotxe gran. L'edifici disposa de servei de porteria, ascensor i accés adaptat per a persones amb mobilitat reduïda. Està situat a 100m del supermercat Mercadona, a 100m de l'estació de tren i autobusos, a 600m de la Rambla i de la zona comercial de Figueres, a 950m del centre turístic principal Josep Masdevall, a 2,2km de l'estació de l'AVE, a 15km de les platges d'Empuriabrava, a 25km del Pertús i de la frontera francesa, a 50km de l'aeroport de Girona Costa Brava. Informació legal als consumidors (Art. 20 TRLGDCU): El preu indicat inclou les comissions per intermediació en béns immobles, i NO inclou impostos, despeses notarials, despeses registrals ni mobiliari. Impost Patrimonial Transmissió del 10% del preu de venda, impost o valoració catastròfica. Els gasos notarials i registrats tenen tarifes legals. La fitxa informativa completa està disponible a https://atc.gencat.cat/es/tributs/itpajd/.

Si voleu més informació sobre aquesta propietat, si us plau, ompli el qüestionari:

Immo Rubi Julia
Carretera de les Arenes 10
17480 – Roses

972 150 270 - 631 434 293

Treballem amb multiexclusivitat o exclusiva compartida a la Costa Brava i Girona.
És un sistema de comercialització d'immobles mitjançant el qual una sola agència immobiliària coopera amb tota una xarxa d'agències amb un objectiu comú: VENDRE LA TEVA PROPETAT