Ref.
Cerco
Tipus
A
Zona
Habitacions
Banys
Característiques
Preu

Terreny urbà edificable de 777 m² situat a Mas Pau (ref.3803)

Terreny en venda a Avinyonet de Puigventos, Girona (Avinyonet de puigventós)

115.000 €
ref. 3803
2026 Año de construcción
777 m2 parcel·la
 

Estat A estrenar
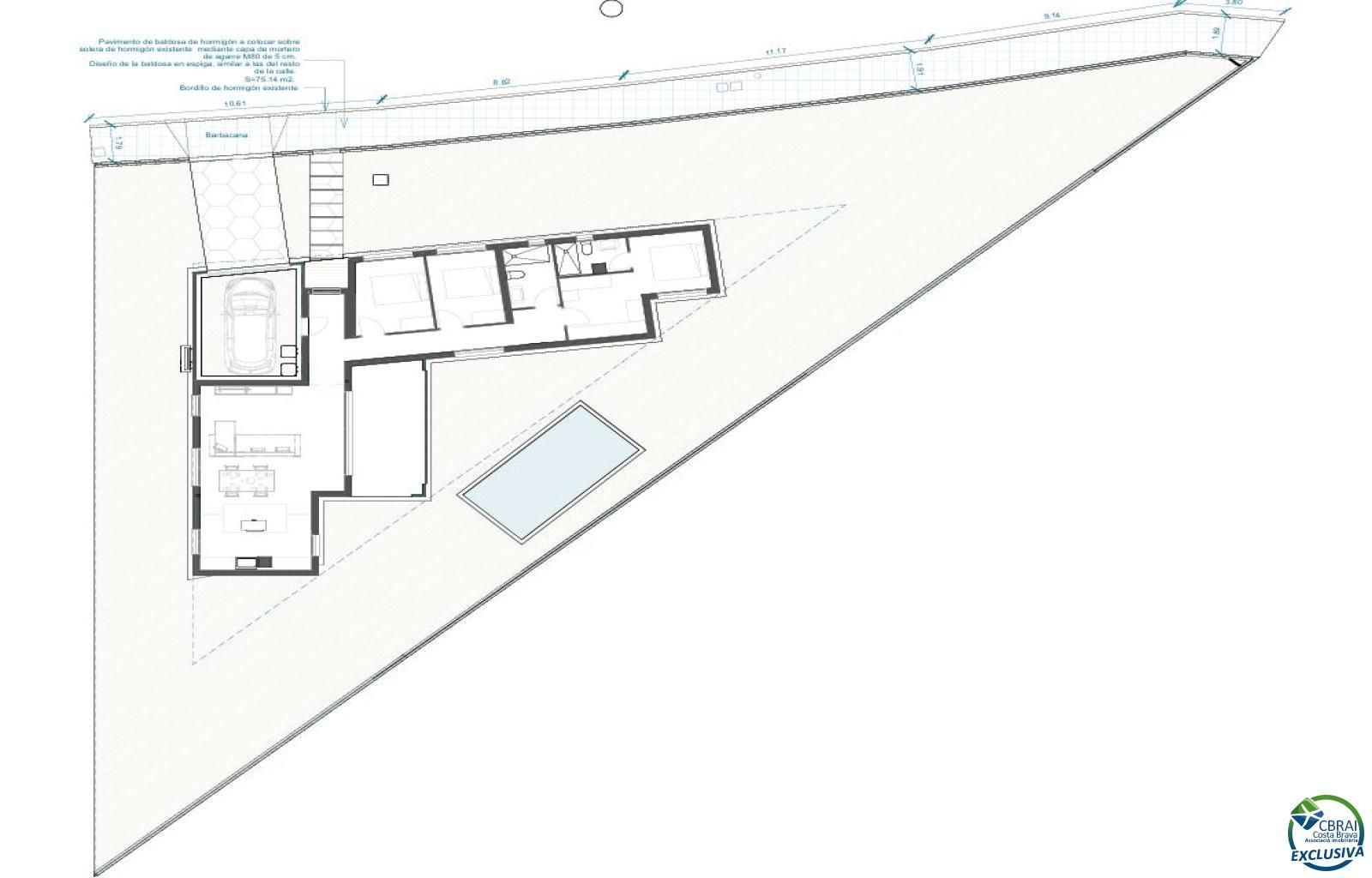
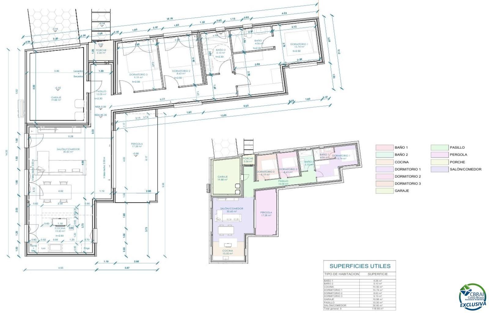
Excel·lent oportunitat per a adquirir una parcel·la urbana cantonera de 777m² situada a la tranquil·la i ben connectada zona de Mas Pau. Terreny totalment edificable, ideal per a desenvolupar un habitatge unifamiliar modern amb jardí. Es lliura amb el projecte realitzat amb Modular Home, l'empresa espanyola mes prestigiosa en habitatges modulars de formigó. S'ha plantejat una casa de planta baixa en forma de L, amb pèrgola i piscina amb orientació sud. Existeix la possibilitat de modificar algunes parts del projecte, llest per a sol·licitar la llicència d'obres. Ideal per als qui busquen construir a mida a una zona de creixement residencial. Molt bona ubicació i orientació. Per a més informació o visites, contacti'ns sense compromís.
La direcció de l'immoble és aproximada.

Si voleu més informació sobre aquesta propietat, si us plau, ompli el qüestionari:

Immo Rubi Julia
Carretera de les Arenes 10
17480 – Roses

972 150 270 - 631 434 293

Treballem amb multiexclusivitat o exclusiva compartida a la Costa Brava i Girona.
És un sistema de comercialització d'immobles mitjançant el qual una sola agència immobiliària coopera amb tota una xarxa d'agències amb un objectiu comú: VENDRE LA TEVA PROPETAT